Linbury Hill | Townhouse | in Toronto | from coming soon
Linbury Hill
Coming Soon




Key Project Details
Overview
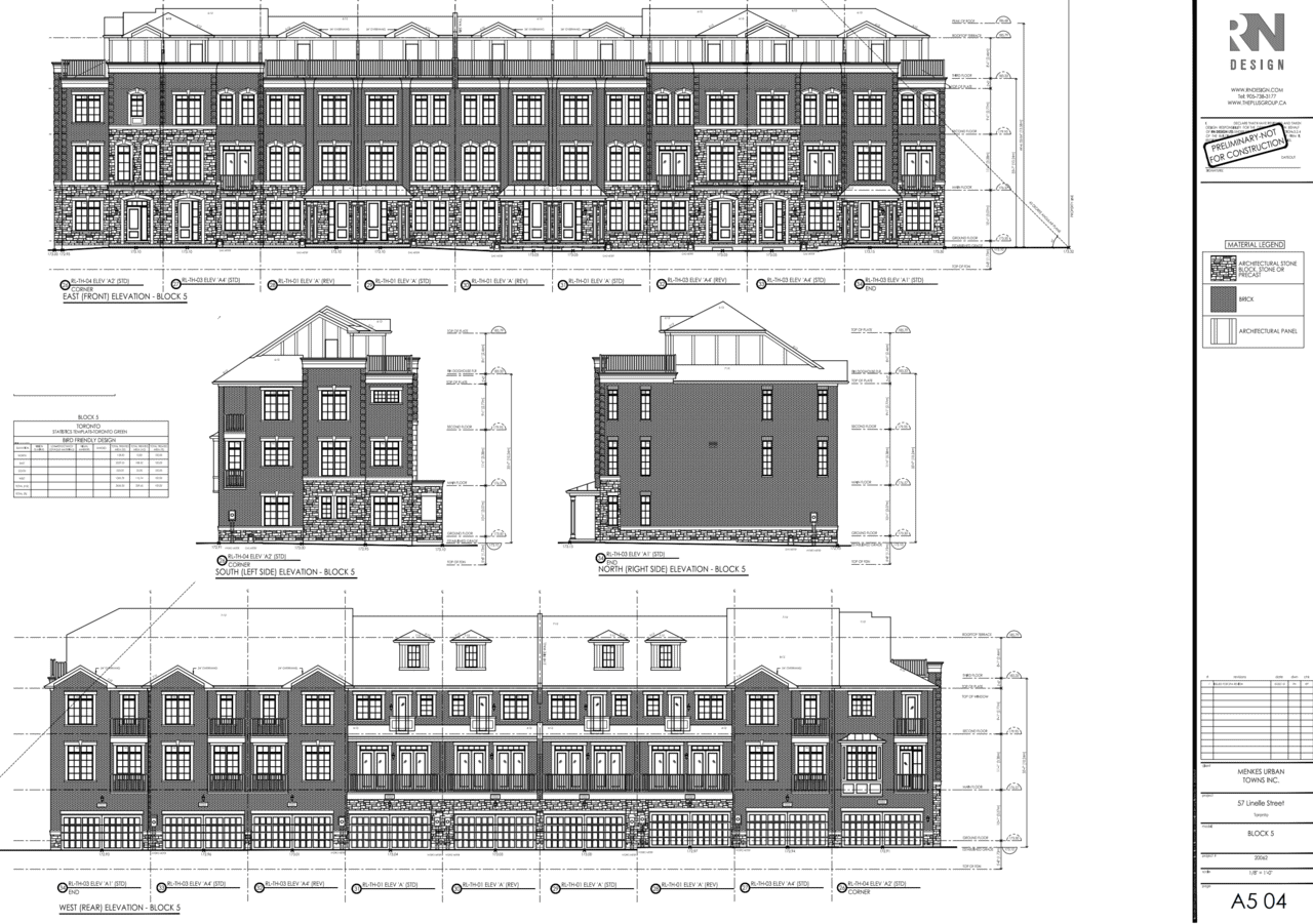
Linbury Hill is a new town house improvement in predevelopment status, situated at 57 Linelle St, Toronto, ON, Canada.
Highlights of Linbury Hill
Linbury Hill is an exclusive residential development consisting of only 34 luxurious detached townhomes, designed to offer a serene and intimate living experience. Nestled in the heart of North York, the community combines refined architecture with thoughtfully planned green spaces. Its low-density character ensures privacy, comfort, and an elevated lifestyle, making it ideal for those seeking boutique urban living.
Each home at Linbury Hill is expected to feature elegant finishes, spacious layouts, and upscale detailing that reflect modern design principles. Residents will enjoy access to dedicated walking and cycling trails, landscaped gardens, a children’s play area, and a fitness space—all tailored to promote wellness and community living. The design philosophy focuses on balancing luxury with functionality, creating homes that are both beautiful and practical.
Backed by a reputable developer, the project reflects a strong commitment to quality construction and timeless aesthetics. Linbury Hill is crafted for discerning buyers who value craftsmanship, thoughtful design, and a peaceful residential setting while remaining connected to the city’s core. The development promises to be a standout address in an increasingly sought-after part of Toronto.
Property Details
Property Name: Linbury Hill
Storeys: 3
Suites: 34
Bedroom: -
Bathroom: -
Size: -
Property Type: Town House
Location: 57 Linelle St, Toronto, ON M2N 2J4, Canada
Price: Coming Soon
Property Status: Pre-construction
Listing Status: Planning
Ownership: Condominium
Developer: Menkes Developments
Location and Neighbourhood
Linbury Hill is located on Linelle Street in North York, one of Toronto’s most established and green neighbourhoods. The area is known for its quiet streets, mature trees, and family-friendly environment. It provides a perfect blend of suburban tranquility and urban access, offering a peaceful atmosphere without compromising on city conveniences.
Transit access is a major advantage of this location. The Sheppard–Yonge Subway Station is within easy reach, providing seamless connections across Toronto via two major TTC lines. Several bus routes are nearby, and major highways like the 401 and Don Valley Parkway are just minutes away by car. This makes commuting to downtown, Midtown, or even the suburbs highly efficient for both professionals and families.
The neighbourhood is also rich in local amenities and green spaces. Residents can enjoy nearby parks, reputable schools, dining establishments, and cultural destinations. Whether it's a walk in Earl Bales Park, shopping along Yonge Street, or accessing services at the North York Civic Centre, Linbury Hill offers a balanced lifestyle in one of the city’s most livable districts.
Reason to Invest In Linbury Hill
Linbury Hill presents a rare opportunity to own a home in a low-rise, luxury development in one of Toronto’s most stable and desirable neighbourhoods. The limited number of units ensures exclusivity, and its boutique nature appeals to both end-users and investors looking for a high-quality, appreciating asset. The surrounding community’s character and greenery add long-term value to the investment.
The project is developed by a leading GTA builder with a strong track record for delivering premium residential communities. Their reputation for excellence in design, construction, and customer satisfaction provides peace of mind to buyers. With a developer of this caliber behind the project, investors can expect a product that retains both quality and value over time.
Linbury Hill’s strategic location enhances its investment appeal. Proximity to key transit hubs, major employment centers, top-rated schools, and growing infrastructure ensures sustained demand in the area. With rising land values and increased interest in low-density living, Linbury Hill stands out as a smart choice for those seeking long-term growth, livability, and prestige in North York.
A Closer Look at the Toronto Real Estate Market
Toronto's real estate market has consistently demonstrated resilience and growth, solidifying its status as one of North America's most dynamic urban centers. The city's robust economy, driven by sectors such as finance, technology, and education, continues to attract a diverse population, fueling demand for residential properties. This sustained demand has contributed to steady appreciation in property values over the years.
The downtown core, where Concord Canada House is located, remains particularly attractive due to its proximity to employment hubs, cultural institutions, and entertainment venues. Developments in this area benefit from high walkability scores and excellent public transit access, factors that are increasingly prioritized by urban dwellers. The trend towards vertical living has led to the proliferation of high-rise condominiums, catering to the preferences of young professionals, families, and investors alike.
Government initiatives aimed at improving infrastructure and expanding public transit networks further enhance the appeal of investing in Toronto's real estate. Projects such as the expansion of the TTC and the development of new transit lines are set to improve connectivity across the city, making residential properties in well-located areas even more desirable. Additionally, Toronto's status as a global city ensures a steady influx of international investors and immigrants, contributing to a vibrant and diverse real estate market.
About Developer - Menkes Developments
Menkes Developments Ltd. is a renowned, privately held real estate development company based in Toronto, with a legacy dating back to 1954. Founded by visionary Murray Menkes, the company began its journey by building high-quality single-family homes and soon grew into one of Canada’s most respected builders. Over the decades, the family-run business expanded into creating master-planned communities and high-rise condominiums across the Greater Toronto Area, solidifying its reputation for delivering design excellence, enduring quality, and superior value.
With time, Menkes diversified its portfolio into commercial, residential, retail, and industrial developments. The company has played a transformative role in shaping Toronto’s skyline, particularly with its large-scale mixed-use projects in the downtown core. Iconic developments like the Harbour Plaza, Sugar Wharf, and the Telus Harbour tower are just a few examples of Menkes’ ability to blend functionality, innovation, and architectural distinction. Their focus on sustainability and urban vibrancy is evident in their LEED-certified commercial buildings and revitalized heritage properties.
Menkes continues to be a market leader in the Canadian real estate industry, regularly topping charts for pre-construction sales and residential unit deliveries. Their Festival project in Vaughan stands as one of the best-selling condominium developments in the country, showcasing the company’s knack for identifying growth markets and responding to consumer demand. Despite its impressive scale and achievements, Menkes remains a family-led company, now managed by the founder’s sons and grandchildren, upholding its original mission: to build vibrant, livable communities that endure for generations.
Project Highlights
Linbury Hill is an exclusive residential development consisting of only 34 luxurious detached townhomes, designed to offer a serene and intimate living experience. Nestled in the heart of North York, the community combines refined architecture with thoughtfully planned green spaces. Its low-density character ensures privacy, comfort, and an elevated lifestyle, making it ideal for those seeking boutique urban living. Each home at Linbury Hill is expected to feature elegant finishes, spacious layouts, and upscale detailing that reflect modern design principles. Residents will enjoy access to dedicated walking and cycling trails, landscaped gardens, a children’s play area, and a fitness space—all tailored to promote wellness and community living. The design philosophy focuses on balancing luxury with functionality, creating homes that are both beautiful and practical. Backed by a reputable developer, the project reflects a strong commitment to quality construction and timeless aesthetics. Linbury Hill is crafted for discerning buyers who value craftsmanship, thoughtful design, and a peaceful residential setting while remaining connected to the city’s core. The development promises to be a standout address in an increasingly sought-after part of Toronto.
Location & Neighbourhood
Linbury Hill is located on Linelle Street in North York, one of Toronto’s most established and green neighbourhoods. The area is known for its quiet streets, mature trees, and family-friendly environment. It provides a perfect blend of suburban tranquility and urban access, offering a peaceful atmosphere without compromising on city conveniences. Transit access is a major advantage of this location. The Sheppard–Yonge Subway Station is within easy reach, providing seamless connections across Toronto via two major TTC lines. Several bus routes are nearby, and major highways like the 401 and Don Valley Parkway are just minutes away by car. This makes commuting to downtown, Midtown, or even the suburbs highly efficient for both professionals and families. The neighbourhood is also rich in local amenities and green spaces. Residents can enjoy nearby parks, reputable schools, dining establishments, and cultural destinations. Whether it's a walk in Earl Bales Park, shopping along Yonge Street, or accessing services at the North York Civic Centre, Linbury Hill offers a balanced lifestyle in one of the city’s most livable districts.
About the Developer
Menkes Developments Ltd. is a renowned, privately held real estate development company based in Toronto, with a legacy dating back to 1954. Founded by visionary Murray Menkes, the company began its journey by building high-quality single-family homes and soon grew into one of Canada’s most respected builders. Over the decades, the family-run business expanded into creating master-planned communities and high-rise condominiums across the Greater Toronto Area, solidifying its reputation for delivering design excellence, enduring quality, and superior value. With time, Menkes diversified its portfolio into commercial, residential, retail, and industrial developments. The company has played a transformative role in shaping Toronto’s skyline, particularly with its large-scale mixed-use projects in the downtown core. Iconic developments like the Harbour Plaza, Sugar Wharf, and the Telus Harbour tower are just a few examples of Menkes’ ability to blend functionality, innovation, and architectural distinction. Their focus on sustainability and urban vibrancy is evident in their LEED-certified commercial buildings and revitalized heritage properties. Menkes continues to be a market leader in the Canadian real estate industry, regularly topping charts for pre-construction sales and residential unit deliveries. Their Festival project in Vaughan stands as one of the best-selling condominium developments in the country, showcasing the company’s knack for identifying growth markets and responding to consumer demand. Despite its impressive scale and achievements, Menkes remains a family-led company, now managed by the founder’s sons and grandchildren, upholding its original mission: to build vibrant, livable communities that endure for generations.
Frequently Asked Questions
What is Linbury Hill preconstruction?
Linbury Hill is a preconstruction project in 57 Linelle St, Toronto, ON M2N 2J4, Canada. Listings share early release details, pricing status, and builder information, including Menkes Developments.
What does “coming soon” pricing mean?
Pricing can be announced after the initial release. “Coming soon” means the builder has not published final price sheets yet.
How do I stay updated on new releases?
Follow the listing page and check updates on project availability, floor plans, and launch timelines.
Explore more in Toronto
Similar Properties
You can see here some similar properties






